Bureau à louer à Bascharage - Réf. 6073909

1 525 €
81,53 m2

Détails de la location

Dépôt de garantie : 4 575 €
Meublé : non
Disponibilité : Immédiate

Description du bien

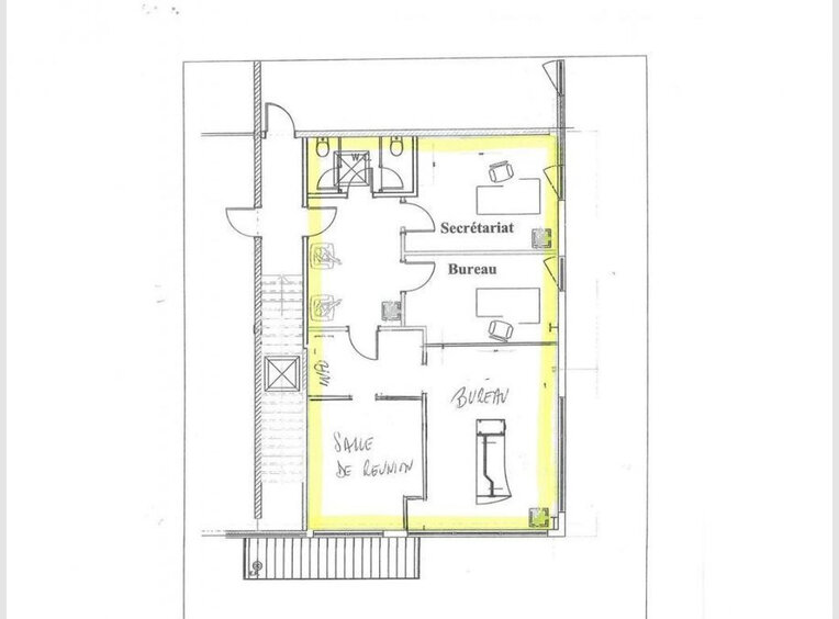
L'agence immobilière MaraMax s.à.r.l vous propose en location cet ensemble de bureaux avec climatisation d'une surface de +/-81.53m2 au premier étage dans la zone industrielle à Bascharage.

Le bureau se composent comme suit:

- sanitaires séparés pour femmes et hommes,
- kitchenette,
- bureau d'accueil avec coin informatique,
- 3 bureaux séparés,
- 1 salle de réunion/bureau.

A ceci s'ajoutent 3 emplacements extérieurs et un système de climatisation.

Prix de location 1.525.-€ + TVA 17%
Disponibilité: Janvier 2021

Pour plus d'informations par rapport de cet ensemble de bureaux, n'hésitez pas à nous contacter.

Demander plus d'infos

Description de l'environnement

Bureau à louer à Bascharage - Réf. 6073909

Caractéristiques du bien

Classe de performance énergétique
Non communiqué

Étage : 1

Réf. sur le site : 6073909

Autre

Téléphoneoui

Aménagement spécifique

Kitchenetteoui
Bureauoui
Salle de réunionoui
Nombre de places de parking externes3

Contacter l'agence MARAMAX s.à r.l.

 

300

 
 
A l'envoi, vous acceptez les conditions d'utilisation
*Champs obligatoires
 
 

Localiser Bureau à louer à Bascharage - Réf. 6073909 *

* Attention : L'adresse exacte n’est pas renseignée, le centre de la localité est indiqué sur la carte.

Contact

MARAMAX s.à r.l.
56, avenue de Luxembourg
L-4950 Bascharage
Luxembourg
Afficher le numéro
 

300

 
 
A l'envoi, vous acceptez les conditions d'utilisation
*Champs obligatoires
 
Tous les biens de MARAMAX s.à r.l. Site Internet de MARAMAX s.à r.l.